For Sale : #4076
Sea view 3-bedroom penthouse available for sale.
€1.100.000+VAT
Description
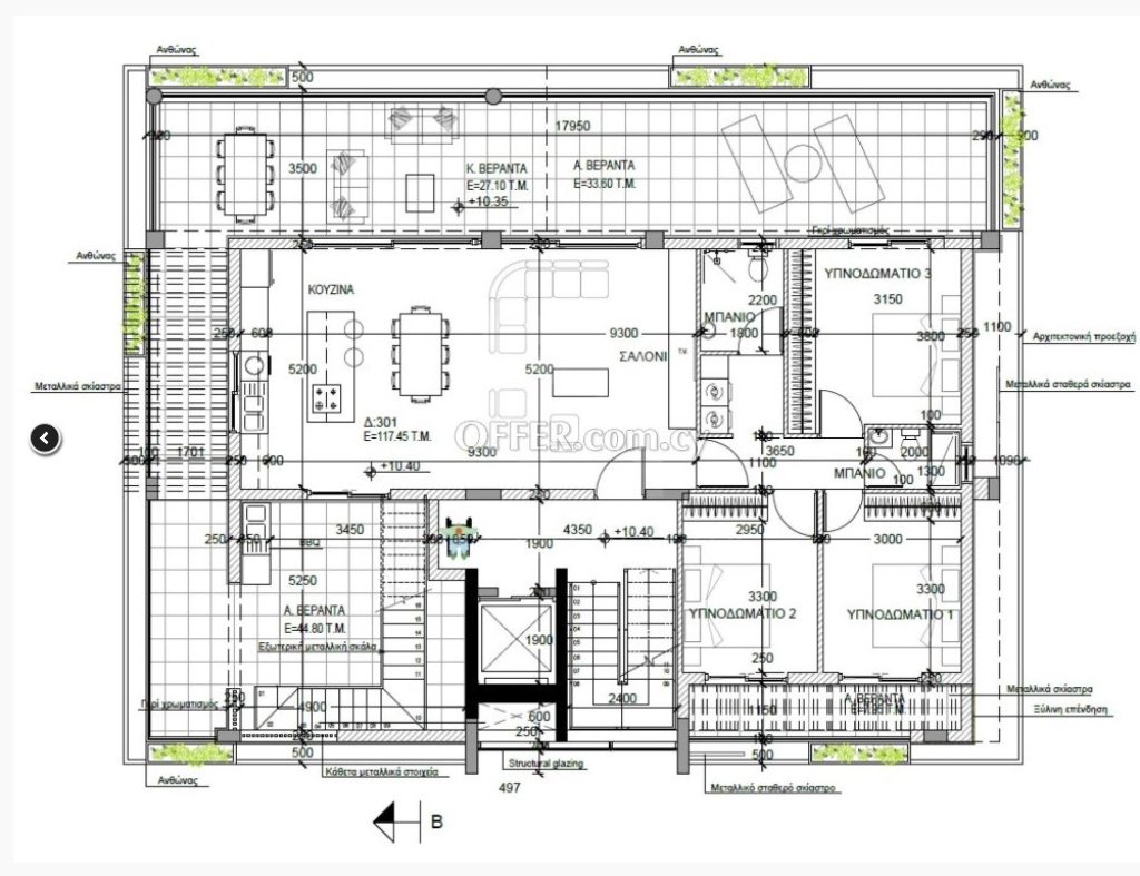
Situated in the fantastic area of Agios Athanasios, with stunning sea views only a few minutes’ drive to the sea and Limassol’s vibrant town center. All amenities and services nearby or within few minutes' drive. This super luxury penthouse apartment with spacious areas, open plan concept incorporates the living sitting - dining areas with the kitchen. Bedrooms are spacious and they give direct access to the balconies.
Indoor & Outdoor extra features
* 30 sq.m covered veranda
* 90 sq.m of uncovered verandas
* 58 sq.m of private roof garden
* 7m X 3m private swimming pool.
* Covered parking space
* Storage room
* 30 sq.m covered veranda
* 90 sq.m of uncovered verandas
* 58 sq.m of private roof garden
* 7m X 3m private swimming pool.
* Covered parking space
* Storage room
Apartment Features
Info
District:
Limassol
Area:
Agios Athanasios
Apartment Type:
Penthouse
Construction Stage:
Under Construction
Details
Beds:
3
Baths:
2
Furnished:
Unfurnished
Kitchen Type:
Open Plan
Main Features
Storage Space:
Do you have a Question?
Lets Talk
Lets Meet
Griva Digeni 27
3106 Limassol
Cyprus
3106 Limassol
Cyprus
