For Rent : #11309
Rented
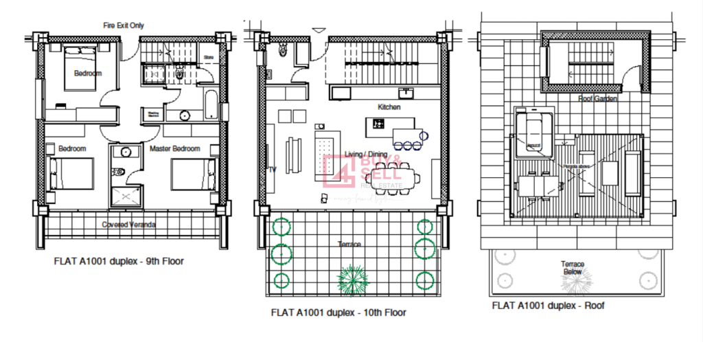
3+1 Bedroom Duplex Penthouse for Rent in Agios Tychonas
€12.500
Description
This stunning 3+1 bedroom duplex penthouse for rent in the exclusive Agios Tychonas area is a true gem, offering luxurious living with exceptional features and spectacular views. Perfect for those seeking a high-end lifestyle, this penthouse combines elegance, space, and modern amenities.
The open-plan design of the apartment creates a bright and airy living space, with a spacious living room and dining area seamlessly flowing into a fully equipped kitchen featuring high-quality appliances and finishes. The apartment is designed with large windows to allow natural light to flood the space, enhancing the luxurious feel.
On the lower level, you will find three generously sized bedrooms, including a master suite with an en-suite bathroom and ample closet space. The additional room, which can be used as a fourth bedroom, office, or guest room, offers flexibility to suit your needs. There is also a well-appointed family bathroom on this floor, designed with sleek modern finishes.
One of the most impressive features of this penthouse is the expansive roof garden, which offers stunning panoramic views of the surrounding area, including the sea and mountains. The roof garden comes with a built-in jacuzzi, creating the perfect setting for relaxation or entertaining guests while enjoying the breathtaking scenery.
Located in the prestigious Agios Tychonas area, this penthouse is just a short distance from the beach, local shops, restaurants, and cafes, providing a perfect balance of tranquility and accessibility to all essential amenities.
Additional features of the apartment include air conditioning, underfloor heating, advanced home automation, dedicated parking, and privacy, all contributing to a truly luxurious living experience.
This 3+1 bedroom duplex penthouse with a roof garden and jacuzzi is a rare find and offers a unique opportunity for those who desire the ultimate in luxury living in Agios Tychonas.
The open-plan design of the apartment creates a bright and airy living space, with a spacious living room and dining area seamlessly flowing into a fully equipped kitchen featuring high-quality appliances and finishes. The apartment is designed with large windows to allow natural light to flood the space, enhancing the luxurious feel.
On the lower level, you will find three generously sized bedrooms, including a master suite with an en-suite bathroom and ample closet space. The additional room, which can be used as a fourth bedroom, office, or guest room, offers flexibility to suit your needs. There is also a well-appointed family bathroom on this floor, designed with sleek modern finishes.
One of the most impressive features of this penthouse is the expansive roof garden, which offers stunning panoramic views of the surrounding area, including the sea and mountains. The roof garden comes with a built-in jacuzzi, creating the perfect setting for relaxation or entertaining guests while enjoying the breathtaking scenery.
Located in the prestigious Agios Tychonas area, this penthouse is just a short distance from the beach, local shops, restaurants, and cafes, providing a perfect balance of tranquility and accessibility to all essential amenities.
Additional features of the apartment include air conditioning, underfloor heating, advanced home automation, dedicated parking, and privacy, all contributing to a truly luxurious living experience.
This 3+1 bedroom duplex penthouse with a roof garden and jacuzzi is a rare find and offers a unique opportunity for those who desire the ultimate in luxury living in Agios Tychonas.
Apartment Features
Info
District:
Limassol
Area:
Agios Tychon Tourist Area
Apartment Type:
Duplex
Construction Stage:
Completed
Details
Beds:
4
Baths:
3
Floor Number:
10
Furnished:
Fully Furnished
Kitchen Type:
Open Plan
Covered Parking:
2
Areas
Internal Area:
196m²
Covered Verandas:
51m²
Covered Area:
337m²
Total Area:
444m²
Roof Garden Area:
90m²
Energy
Heating Type:
Central Heating
Heating Medium:
Underfloor Heating
Cooling Type:
Central Cooling
Main Features
Secure Door:
Elevator:
Common Swimming Pool:
Storage Space:
Double Glazing:
En-Suite:
Fitted Kitchen:
Garden:
Gated Complex:
Gym:
Landscaped Gardens:
Luxury Fittings:
Roofgarden:
Sauna:
Veranda Covered:
Veranda Uncovered:
Do you have a Question?
Lets Talk
Lets Meet
Griva Digeni 27
3106 Limassol
Cyprus
3106 Limassol
Cyprus
